Drawing of residential building 2d block AutoCAD file

Drawing of residential building 2d block AutoCAD file

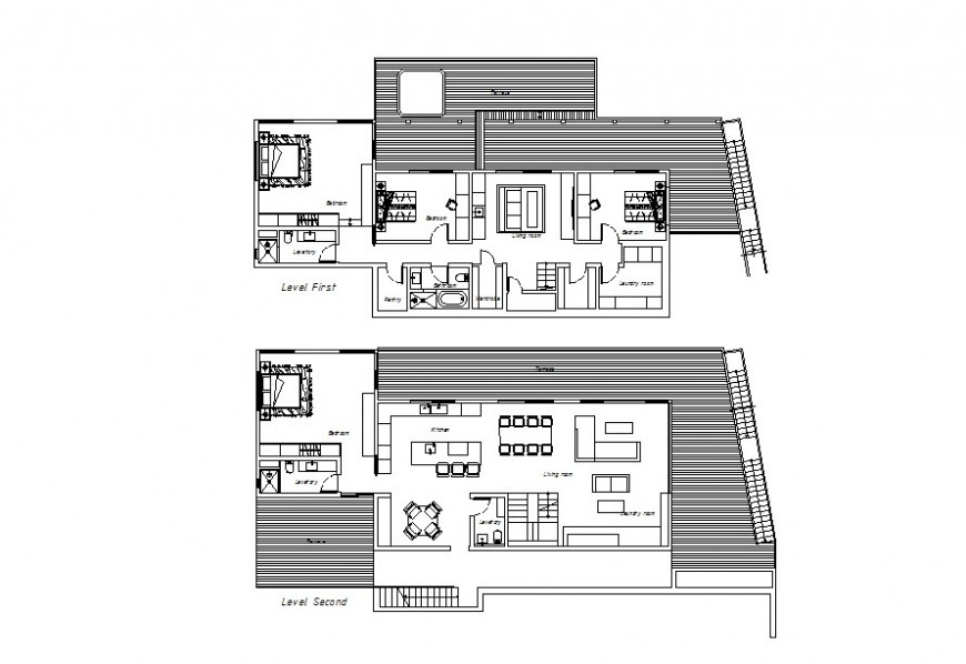
File description

Drawing of residential building 2d block AutoCAD file which includes a top view of the ground floor with dining area, living area, laundry room, kitchen, powder room, bedroom and first-floor plan with three bedrooms, living room and laundry room etc.
 

Category